Two Concourse Available Move-In-Ready Suites


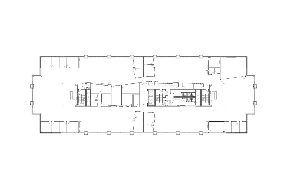
SUITE 300

27,598 RSF

Full Floor, Move-in-Ready

Available 1/1/2027